1. 서 론
2. 이론적 배경
2.1 비탈면 붕괴 원인
2.2 비탈면 안정해석법
2.3 Soil Nailing
3. 연구 흐름
4. 상향식 비탈면 보강재
4.1 상향식 비탈면 보강재
4.2 상향식 비탈면 보강재의 구성
5. 수치해석
5.1 수치해석 모델
5.2 수치해석 조건
6. 실내모형실험
6.1 모형토조
6.2 시료 특성
6.3 실내실험을 위한 상향식 비탈면 보강재
6.4 간극수압계
7. 연구 결과
7.1 수치해석 결과
7.2 실내실험 결과
7.3 연구 결과 고찰
8. 결 론
1. 서 론
최근 기상이변으로 인한 여름철 집중호우로 도로나 건설현장에서의 비탈면 붕괴에 대한 관심이 많아지고 있다. 특히 절토비탈면에서는 대기의 영향으로 원지반의 전단강도가 시간이 경과함에 따라 저하되며, 우기 시 지하수위 상승으로 침투압이 비탈면에 활동력으로 작용하여 지반 내 함수율을 증가시켜 전단강도의 감소를 유발시킨다. 또한 표층에서의 흐름과 비탈면 내부로 강우가 침투하여 형성된 침윤선이 연직침투 과정을 거쳐 암반층과 같은 불투수층에 이르면 암반과 평행한 불투수층의 경계면을 따라 평행침투 과정이 진행되며, 활동력과 침투수력이 평행을 이루는 한계수위 형성위치에서 비탈면의 붕괴가 발생한다. 이와 같은 비탈면의 붕괴를 억지하기 위한 공법의 연구가 활발히 진행되고 있다.
대표적인 비탈면 보강 공법인 Soil Nail 공법은 보강재를 지반 내에 삽입하여 Nail의 인장력을 통해 활동저항력을 증가시켜 비탈면의 거동을 억제하는 공법으로 주로 수평배수공과 병행하여 적용되고 있으나, 지속적인 강우나 집중호우 시 비탈면이 붕괴되는 사례가 종종 발생하고 있다(Han, 2007). Soil Nailing 공법은 지반과 Nail의 상호작용은 보강재의 역학적 성질과 지반의 전단강도 및 초기응력 상태, 마찰력, Nail의 설치 경사 및 방향 등에 영향을 받는다(Kim, 2019). 이러한 Soil Nail 공법은 지반의 활동을 억제하지만 강우로 인한 침투수는 별도의 배수공을 설치하여 비탈면의 장기적 안정성을 확보하고 있다. 이에 시공성과 경제성을 확보하기 위해 Soil Nail 공법에 배수를 겸한 상향식으로 비탈면에 적용하여 비탈면 내에서의 배수기능을 수행할 수 있다는 연구를 진행하였다(Kim, 2008). 또한, 수치해석을 통해 수평배수공 시공에 따른 비탈면의 지하수위 침투흐름 및 지반조건에 따른 공학적 특성을 분석하여 각 현장 조건에 효율적인 시공 기준을 제시하였다(Seo, 2012). Jeon(2019)는 수치해석을 통해 비탈면에 지하수 저하공법을 적용할 경우 안전율이 증가하는 효과를 확인하였다.
Bhattachergee et al.(2019)은 원심분리기를 활용하여 배수가 불량한 토질의 보강비탈면에서 강우가 미치는 영향에 관한 연구를 발표하였다.
Morgan(2002)는 수치해석을 통해 유효응력의 변화에 따른 쏘일 네일링으로 보강한 비탈면의 공학적 특성에 관한 연구를 발표하였다. 이와 같이, 비탈면 보강 및 배수에 관한 연구는 꾸준히 수행되고 있으며, 수치해석 및 실험을 통해 비탈면 보강재의 보강 효과를 극대화할 수 있는 공법에 대한 연구가 수행되고 있다.
따라서 본 연구에서는 토사로 이루어진 비탈면을 대상으로 절·성토 시 고려해야 할 안전성 확보를 위해 활동저항력과 배수효과를 만족하는 상향식 비탈면 보강재를 제안하고, 상향식 비탈면 보강재의 보강 및 배수 효과를 확인하기 위하여 대표단면을 설정하여 보강재의 매설 각도에 따른 배수 및 보강 효과를 확인하였으며, 실내 모형실험을 통해 수치해석을 통해 도출된 결과를 검증하고자 하였다.
2. 이론적 배경
2.1 비탈면 붕괴 원인
비탈면의 안정에 미치는 주요 영향인자는 비탈면의 지형적 형태와 지반 구성 물질에 따른 강도특성이 있다. Terzaghi(1950)는 비탈면의 붕괴 요인으로 지형학적 요인과 토질 및 지질조건에 의한 내적 요인이 있으며, 자연의 영향에 따른 요인으로 강우, 바람 및 지진 등을 외적요인으로 분류하였다.
내적 요인이란 비탈면의 안정성이 시간 경과에 의해 변화하지 않는 인자로서 비탈면 자체의 특성에 관한 요소를 의미한다. 비탈면의 붕괴형태는 이루는 지층과 지질 구조에 따라 각양각색으로 나타나게 된다. 불연속면의 특성에 따라 비탈면 표층의 물리적 풍화작용으로 미세균열이 발생하고, 입자간 전단의 발생으로 강도 저하 등에 기인하여 붕괴가 발생하며, 강우와 지표수의 침투조건에 따라 흙의 강도나 투수성이 서로 다른 면이 형성된 이질층의 경계면에 주로 붕괴가 발생한다(Jeon, 2019).
외적 요인은 자연적인 영향력과 인공적인 영향력으로 시간 경과에 따라 작용하는 요인으로 토목공사 시 굴착과 성토에 의한 비탈면 활동력의 증가로 붕괴될 수 있으며, 강우에 의한 표층유실과 지하수위 및 간극수압의 변화로 비탈면의 전단저항력이 감소하고, 침투력이 활동력으로 작용하게 되어 토사층의 중량 증가로 지반 강도에 변화를 주어 붕괴가 발생하는 것을 의미한다(Kwak, 2019).
2.2 비탈면 안정해석법
토사로 이루어진 비탈면은 불연속적인 토립자로 구성되어 있으나 하나의 연속체로 평가할 수 있으며, 파괴 시 임의의 최소 활동 저항선을 따라 발생하기 때문에 지반정수에 크게 의존하게 된다. 토사 비탈면의 안정해석 방법으로 한계평형 해석과 유한요소해석으로 구분할 수 있다.
2.2.1 Bishop의 간편법
절편 간 작용력이 수평방향으로 작용한다고 가정하여 각 절편 저면에 작용하는 수직력 N'를 연직방향에 대한 힘의 평형조건에서 구하고, 안전율은 회전중심에 대한 모멘트평형을 취함으로 Eq. (1), Eq. (2)와 같이 구할 수 있다.
2.2.2 Fellenius 방법
안전율은 원호 활동면에서만 적용이 가능하고 모멘트 평형조건에서만 구한다. 안전율 Fs는 Eq. (3)과 같으며, Bishop의 간편법에 비해 계산이 간편하나 오차범위가 정해보다 5~20% 정도 큰 경우가 많으며 과소평가하는 경향이 있다(Nam, 2014).
2.3 Soil Nailing
비탈면의 보강은 강우, 융설 등과 같은 물의 영향으로부터 안전율을 확보하는 공법과 말뚝 등의 저항력을 이용하여 비탈면의 활동력을 감소시켜 안전율을 증가시키는 공법으로 구분된다.
안정된 비탈면이라도 여러 자연적 원인에 의하여 비탈면의 안전율이 감소되어 파괴가 발생할 수 있다. 자연적 작용의 대표적 예로 우수나 용설수의 침식작용과 비탈면의 풍화작용을 들 수 있다. 이러한 작용으로부터 비탈면을 보호하기 위하여 비탈면을 공기 중에 노출시키지 않고 피복시켜 줄 필요가 있으며, 지중에 침투된 물을 즉각 배수될 수 있게 하여 비탈면의 활동력 증가 혹은 저항력 감소에 영향이 미치지 못하도록 조치하여야 한다(Kim, 2011).
비탈면 보강을 위한 대표적인 공법은 Soil Nailing이다. Soil Nailing 공법은 보강토 공법의 일종으로 Nail의 인장력을 통해 비탈면, 옹변 및 굴착면의 안정성을 증가시키는 기술이다. 지반과 Nail 사이의 마찰성분의 상호작용을 통해 파괴에 저항하며, Soil Nail을 따라 발생하는 힘의 재분배를 통하여 보강토체로서의 공학적 성질을 개선시킨다. Soil Nail의 허용인장강도 Tt는 Eq. (4)와 같다(Kim, 2019).
3. 연구 흐름
본 연구는 효율적인 비탈면 배수 및 보강을 위해 비탈면에 배수 및 보강 효과를 모두 기대할 수 있는 상향식 비탈면 보강 공법을 제안하였으며, 배수 및 보강 효과를 확인하고자 수치해석을 실시하였다. 이를 위해 Soil works 5.5 수치해석 프로그램을 활용하여 대표단면에 상향식 비탈면 보강재를 적용하여, 수평 보강재의 매설각을 0°~60°까지 10°단위로 변경하여 최적의 보강 및 배수 효과를 발휘하는 각도를 선정하였다. 또한, 수치해석 결과를 검증하기 위하여 간극수압계가 부착된 실내 모형토조를 제작하고, 화강 풍화토를 활용하여 비탈면을 모사하였으며, 비탈면에 상향식 비탈면 보강재를 적용하고, 수평보강재를 20°와 40°로 매설하여 실내모형실험을 수행하여 결과를 확인하였다. Fig. 1은 연구흐름을 나타낸 그림이다.
4. 상향식 비탈면 보강재
4.1 상향식 비탈면 보강재
본 연구에서 제안한 상향식 비탈면 보강재는 비탈면을 복합지반으로 보강하는 장치로 활동력에 저항하는 역할과 함께 다수의 배수재를 포함하여 강우 및 용출수에 의한 침투압과 간극수압을 소산시키는 동시에 전단응력을 향상시킬 수 있다. 이러한 보강재는 비탈면의 크기 및 토질상태에 따라 간격과 수량을 계산하여 효율적인 보강효과를 나타낼 수 있다. 비탈면 상부의 높은 위치수두에 해당하는 연직배수로가 비탈면 내에서의 집수정 역할을 담당하여 이에 집수된 지하수가 수두차로 인해 상향각 배수로 말뚝시설의 토출구로 유출되는 구조를 이루고 있다. 상향각 배수로 말뚝시설의 매설각도에 따라 지하수위 저감효과가 달라질 것으로 예상된다.
4.2 상향식 비탈면 보강재의 구성
상향식 비탈면 보강재는 Fig. 2와 같이 철근을 쇄석, 모래 등 투수성이 높은 골재로 구성된 보강재를 소단 부분에 연직으로 매설한 연직 보강재와 비탈면에 매설한 수평 보강재로 구성되어 있다. 또한, 비탈면 내부에서 연직 배수재와 수평 배수재를 결합시켜 유출구보다 높은 수위를 유지할 경우 원활한 배수효과를 발휘할 수 있도록 설계되었다.
5. 수치해석
5.1 수치해석 모델
본 연구에서는 Midas사에서 출시한 Soil works 5.5 프로그램을 사용하여 2차원 비탈면안정해석을 실시하였다. 먼저, CAD를 활용하여 모형토조의 크기에 부합하도록 비탈면 해석 단면을 결정하고, 각각의 토층의 강도정수와 지하수위 조건을 부여한 뒤 침투해석을 위한 경계조건을 설정하여 지하수위와 안전율의 변화를 확인하였다.
대표단면은 비탈면과 연직 배수재, 조건에 따른 상향식 비탈면 배수재로 구성되어 있으며, 비탈면의 규모는 가로 9.3m, 세로 6.18m, 소단 0.75m, 폭 5m로 설정하고 비탈면의 경사는 1:1.4의 조건으로 설정하였으며, 사용재료로는 우리나라 전역에 넓게 분포하고 있고 이용도가 가장 높은 화강풍화토로 선정하였다. 또한, 배수재는 D500의 자갈로 설정하였다. Table 1은 수치해석에 적용된 지반정수 및 조건이며, Fig. 3은 모델링된 비탈면을 나타낸 모식도이다.
Table 1.
Soil properties and boundary conditions of the modeled ground
5.2 수치해석 조건
지하수위의 배수 효과를 확인하기 위해 기상청 자료를 바탕으로 2015년부터 2020년까지 강수량이 많은 전남지역 8월 강우강도 평균값인 0.202m3/day를 비탈면 배면에 적용시켜 지하수위 변화를 관찰하였으며, 초기 지하수위를 바탕으로 정상류 해석을 실시하였다. 2일 경과 시 비탈면의 약 40%가 포화되었으며, 4일 경과 시 90%, 6일 경과 시 비탈면이 전체적으로 포화되는 것으로 확인되었다.
보강재의 지하수위 저감 효과 및 안전율을 비교하기 위하여, 보강재를 각도에 따라 다르게 설정하여 대표단면에 적용하였다. 보강재는 연직 배수재와 상향식 또는 수평 배수재로 구성되어 있으며, 비탈면 모델 단면에 0°, 10°, 20°, 30°, 40°, 50°, 60°로 설정하여 해석을 실시하였다.
6. 실내모형실험
수치해석 결과를 바탕으로 상향식 비탈면 보강재의 보강 및 배수효과를 확인하고, 이를 검증하기 위해서 실내모형실험을 실시하였다. 실내 모형실험은 간극수압계가 설치된 모형토조에 비탈면을 모사하고 매설각을 20°와 40°의 조건으로 상향식 비탈면 보강재를 매설했다. 실내모형실험을 통해, 매설각에 따른 지하수위의 변위를 확인하여, 보강재의 지하수위 저감 효과를 확인하고자 하였다.
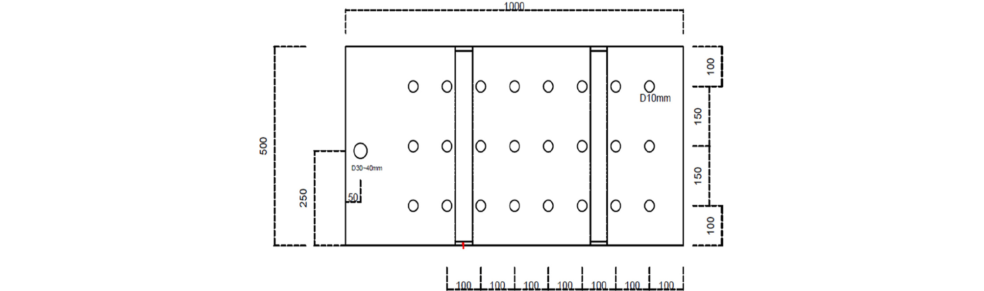
6.1 모형토조
모형실험을 실시하기 위해 폭×높이×길이(500mm×500mm×1,000mm)의 모형토조를 제작하였다. 모형토조의 모식도는 Fig. 4와 같으며, 간극수압을 측정하기 위한 측정 포트를 토조 밑면에 10cm 간격으로 배치하였다. 밑면과 측면에서 토사와 벽면간 선택적 흐름을 방지하고자 흐름 방지판을 2개소 설치하였으며, 침투수 공급과 일정 수위를 유지하도록 저수조에 다수의 천공홀을 설치해 토층 전체에 원활한 공급이 되도록 하였다. 비탈면은 수치해석 모델링과 동일한 크기로 기울기는 1:1.4, 건조단위중량은 16.5kn/m3으로 설정하였다. 비탈면의 모사는 총 5층으로 작아지는 면적에 맞는 토사량을 계산하여 다짐을 실시하였으며, 비탈면의 모사가 완료된 후 배면의 저수조에 물을 채움으로서 비탈면의 침투를 유발하여 지하수위를 모사하였다.
6.2 시료 특성
모형실험에 사용된 시료는 우리나라 전역에 넓게 분포하고 있을 뿐만 아니라 건설현장에서 쉽게 접할 수 있는 화강풍화토를 사용하였다. 이 재료의 특징은 풍화정도에 따라 입자 내 간극이 잘 발달되어 하중을 받으면 큰 변형이 발생되며, 간극비에 크게 의존하는 특징을 가지고 있다(Kim, 2014). 실내 모형실험에 사용된 시료는 자연비탈면에서 채취하여 사전에 건조시켰고, 실험에 영향을 미칠 수 있는 이물질을 체가름(No.4)을 통해 제거한 뒤 비탈면을 모사하였다.
6.3 실내실험을 위한 상향식 비탈면 보강재
모형실험에 사용된 비탈면 보강재는 투수계수가 큰 굵은 모래(4mm 이하)를 주재료로 하였고, 보강재의 강성을 모사하기 위한 보강 철근(D2.0mm)를 중앙에 설치하여 배수 및 보강의 기능을 가지도록 설계하였다. 비탈면 보강재는 포화가 완료된 비탈면에 케이싱을 이용하여 천공 뒤 케이싱 내부에 삽입하였고, 이후 케이싱을 인발하여 매설하였다.
6.4 간극수압계
지하수위 저감효과와 매설각에 따른 지하수위 변화를 확인하기 위해 모형토조 하부에 간극수압계를 설치하였다. 간극수압계 제작 시 입경이 큰 모래를 사용하여 지하수위 침투 흐름을 간극수압계로 유도하였다. 내경 10mm의 PVC투명 튜브를 모형토조 벽면에 부착하여 마노미터를 만들어 육안으로 지하수위를 확인할 수 있도록 하였으며, 한 부분에서만 확인할 경우 왜곡이 발생할 수 있기 때문에 저수조를 기준으로 우측부(PWP1), 중앙부(PWP2), 좌측부(PWP3)로 구분하여 총 24개의 간극수압계를 부착하여 각 위치별로 지하수위를 측정하였다.
7. 연구 결과
7.1 수치해석 결과
보강재가 매설된 대표단면에 6일간 강우강도를 적용하였으며, 보강재의 배수 및 보강 효과를 확인하기 위하여 2일, 4일, 6일에서 단면의 지하수위를 검토하였다. 그 결과, 상향식 배수재를 20°로 매설한 조건의 안전율이 가장 높게 나타났으며, 10°~60° 조건 모두에서 안전율 3.0 이상이 나타났다. 또한, 보강이 이루어지지 않은 단면의 경우 안전율이 3.0 이하로 나타났다. 이를 통해 수치해석 대표단면의 경우 상향식 비탈면 보강재는 비탈면의 보강 효과가 있는 것으로 판단할 수 있다.
수치해석 조건에서 보강재의 지하수위 저감율을 확인한 결과, 무보강 시 지하수위는 4일째부터 급격히 증가하는 것으로 나타났다. 무보강의 조건과 보강재 매설 조건과의 지하수위 비교를 통해 매설각에 따른 지하수위 저감효과를 확인한 결과, 40°의 각도에서 2일, 4일, 6일 경과 지하수위 저감율이 가장 높은 것으로 나타났으며, 20°의 각도에서 저감율이 가장 낮은 것으로 나타났다.
40°로 매설된 상향식 비탈면 보강재와 수평 보강재의 배수 및 보강 효과를 비교한 결과, 상향식 비탈면 보강재의 지하수위 저감율과 안전율이 상대적으로 높은 것으로 나타났으며, 이를 통해 수평 배수재보다 상향식 배수재의 배수 및 보강 효과가 뛰어난 것으로 판단할 수 있다. Table 2는 조건별 간극수압과 안전율을 나타내었다.
Table 2.
Pore water pressure and safety factor by condition
7.2 실내실험 결과
상향식 비탈면 보강재의 배수효과를 화인하기 위해 모형토조를 제작하여 수치해석과 동일한 조건의 인공비탈면을 모사하였다. 모사된 인공비탈면에 보강재의 매설각도에 따라 20°와 40°를 각각 Case 1, Case 2로 명명하고, 하부의 간극수압계를 통해 지하수위 변화를 관찰하였다.
7.2.1 Case 1
지하수위는 각각의 간극수압계에서 5일간 측정한 평균을 산출하여 적용하였으며, Fig. 5는 보강재를 20°로 매설 시 지하수위의 변화를 나타내었으며, Table 3은 Case 1의 간극수압계별 지하수위 저감률을 나타내었다.
Table 3.
Case 1 Groundwater reduction rate
| Distance | 20 | 30 | 40 | 50 | 60 | 70 | 80 | 90 |
| PWP1 | 0.81 | -6.95 | -10.98 | 17.43 | 20.10 | 30.18 | 42.86 | 145.45 |
| PWP2 | -18.31 | -4.53 | -9.96 | -2.83 | 35.33 | 43.42 | 30.00 | 31.25 |
| PWP3 | -0.54 | -3.07 | 6.10 | 13.50 | 26.06 | 31.55 | -10.67 | 76.00 |
비탈면 상단부(20~40cm) 구간에서는 약 5.27%의 지하수위 저감효과가 발생하였으나, 하단부(50~80cm) 구간에서는 비탈면 붕괴가 발생하여 지하수위가 상승하는 현상이 나타났다. 이는 보강재의 매설각이 비탈면 경사에 가까워질수록 침출압이 증가함에 따라 표면유실 및 보강효과 감소로 비탈면 붕괴와 지하수위 상승이 나타난 것으로 판단된다.
7.2.2 Case 2
Case 1과 동일한 조건에서 상향식 보강재의 매설각도를 40°로 적용하였을 경우 전반적인 모든 부분에서 지하수위가 감소하였으며, Fig. 6에 변화를 나타내었다. 특히 상단부(20~40cm) 구간에서 약 24.75%의 저감효과가 발생하였고, 하단부(50~90cm)에서는 약 11.29%의 저감효과가 나타났다. 또한, Case 2에서는 비탈면의 붕괴가 발생하지 않았으며, 이는 보강재가 억지말뚝 효과와 더불어 배수기능이 개선되어 나타난 현상으로 판단된다. 따라서 보강재를 40°로 설정하는 것이 비탈면 내 지하수위의 감소효과가 더욱 높으므로, 비탈면 보강에 상대적으로 유리한 것으로 나타났다. Table 4는 Case 2의 간극수압계별 지하수위 저감률을 나타내었다.
Table 4.
Case 2 Groundwater reduction rate
7.3 연구 결과 고찰
수치해석을 통해 상향식 비탈면 보강재의 보강 및 배수 효과를 확인하였으며, 40°로 매설한 상향식 비탈면 보강재의 지하수 저감 효과가 가장 우수하게 나타났고, 20°로 매설 시 비탈면의 안전율이 가장 높게 나타났다. 이를 바탕으로, 20°와 40°의 매설각으로 실내모형실험을 실시한 결과, 20°에서 비탈면의 붕괴가 발생하였다. 이는 지하수의 배출이 원활하게 발생하지 않아 토사가 유실되면서 발생한 현상으로 추정된다. 또한, 40°의 매설각 조건에서는 비탈면의 붕괴가 발생하지 않았으며, 지하수위 저감효과를 확인할 수 있었다.
8. 결 론
본 연구에서는 상향식 비탈면 보강 공법을 제시하여 매설조건에 따른 지하수위 저감과 전단강도 보강효과를 확인하기 위해 수치해석을 실시하였으며, 조건이 좋은 두 Case에 대하여 모형토조를 이용한 실내모형실험을 수행하여 다음과 같은 결과를 얻었다.
(1) 수치해석으로 경사 조건에 따른 상향식 비탈면 보강재의 매설각도를 10°~60°까지 10°단위로 변화시켜 지하수위 저감효과를 확인한 결과 20°와 40°에서 38.25~73.16%의 저감효과를 발휘하였으며, 경사조건에 관계없이 40°에서 가장 우수한 결과를 보였다.
(2) 상향식 비탈면 보강재 매설 시 경사조건에 관계없이 20°에서 안전율이 가장 크게 증가하는 경향을 보였다.
(3) 실내모형실험에서 상향식 비탈면 보강재 매설 시 무보강과 비교하여 6.9%~7.72% 향상된 유출량을 나타내었다.
(4) 실내모형실험결과 상향식 비탈면 보강재를 20°로 매설할 경우 보강재가 비탈면 경사에 가까워질수록 침출압의 증가로 인한 토사유실 및 비탈면 붕괴가 발생하였다.
본 연구를 통해 강수량이 많은 지역의 시공 현장에서 비탈면 보강재 적용 시 지하수위 저감효과 및 안전율의 증가를 기대할 수 있을 것으로 판단되며, 추후 현장단위의 시험을 통해서 현장 적용성을 파악하는 연구가 수행되어야 할 것으로 사료된다.








